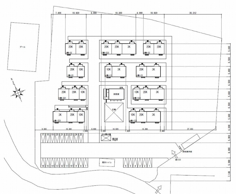
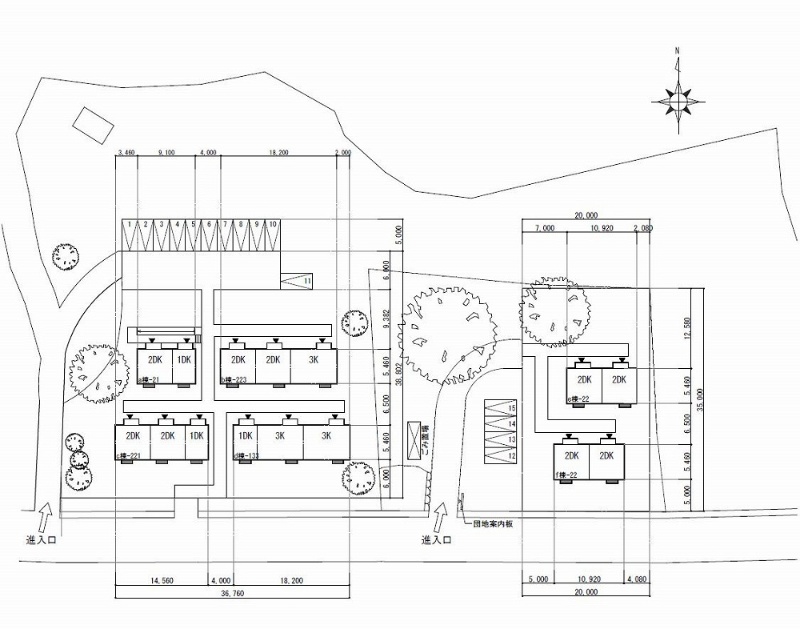
仮設住宅の場所 徳森公園(大洲市徳森):3戸 ※希望の場所に入居できるとは限りません。 仮設住宅のタイプ 2dk ※下図の通り ※駐車場は1戸につき1台。 間取り 入居費用 使用料(家賃)は無料 ※光熱水費などは入居者負担 入居基準仮設住宅群 多層仮設住宅の必要性 現在、被災地での仮設住宅の建設が始まっている。しかし、必要十分な戸数の仮設住宅供給の目処が立たない 市町村もあった。その最大の理由は、被災地のほとんどが沿岸地域で十分な平地がなく、従来の平屋仮設住宅応急仮設住宅 1k(6坪) 応急仮設住宅 2k(9坪) 応急仮設住宅 3k(12坪) 応急仮設住宅 集会所(21坪) ※建設戸数に応じて集会所の大きさは変更可能。
画像あり 女川町の2 3階建てコンテナ仮設住宅が 仮設ってレベルじゃない と話題に コンテナ 3階建て 仮設
仮設住宅 間取り 熊本
仮設住宅 間取り 熊本- 陸前高田グローバルキャンパスでは、災害時に福祉避難所や応急仮設住宅として利用できる移動式木造住宅を全国で初めて内覧・体験可能な形で設置、 年 2 月 21 日に開所式・内覧会を実施しました。 続いて関係者による体験型研修プログラムも試行、「福祉避難所、応急仮設住宅これら住家が滅失した被災者のうち、自らの資力では住宅を確保することがで きない者に対し、簡単な住宅を仮設し一時的な居住の安定を図るものである 。 2.対象者 住家が全壊又は流失し、居住する住家がない者であって、自らの資力では住



熊本型仮設住宅 熊本で注文住宅を建てるならコムハウス
復興公営住宅の完成写真及び間取り図 ふくしま復興ステーション 印刷用ページを表示する 掲載日:21年5月19日更新 Tweet 本文 完成した復興公営住宅の外観や内観の写真、間取り図を掲載します。 ご覧になりたい団地をクリックしてくださいムービングハウス 移動型の応急仮設住宅「ムービングハウス」とその社会的備蓄を推進する官民一体のプロジェクト「防災・家バンク」普及促進のために活動しています。 一般社団法人日本ムービンから仮設住宅の写真を見せていただきました。 入り口に車椅子のスロープがついていることから、身体が不自由な方、高齢者 向きの応急仮設住宅なんだろうけど、その標準的間取りが4畳半2間にキッチン がついた2dk。
改めて仮設住宅のあり方を問う(阪神・淡路大震災における仮設住宅)(特集>仮設住宅の生活)/室崎 益輝 社団法人日本建築学会:『建築雑誌Vol115, No1450(0002)』CiNii PDFでダウ・応急仮設住宅の発注計画 各県の発注計画累計戸数=72,290戸 (4月19日付 国交省住宅局付) 内、住団連の生産能力=62,290戸。 これは、1万戸を地元業者等によるものと仮定しています。間取り図ダウンロード ライフスタイルや延床面積、家族構成などを基に作成した、建築士考案の間取りサンプルです。 あなたに合ったマイホームの間取プラン検討にぜひご活用ください。 間取りサンプルを多数収録した間取り&3D住宅デザインソフト「 3D
〒 熊本県上益城郡益城町大字木山594 Tel Fax 開庁時間 月曜~金曜日の午前8時30分~午後5時15分まで(祝日、年末年始を除く) 芳賀沼製作 » 仮設の家 10坪タイプの住宅 〒福島県南会津郡南会津町針生字小坂401 tel 02 fax 02 email info@haganumacojpやはり仮設住宅なので、 一般的な住宅ほどには暑さ寒さはしのぎ切れません。 技術的にはそういう断熱効果の高い仮設住宅も今は作れますが 今回のような大量に仮設住宅の需要がある場合、 そこまで制度の高い仮設住宅は作られないんじゃないかな?



Itと海外生産で 早い 安い 快適な仮設住宅を 日経クロステック Xtech



福島ではなぜ 6000戸以上の木造仮設住宅を建てることができたのか スーモジャーナル 住まい 暮らしのニュース コラムサイト
1応急仮設住宅体制 教訓情報 03間取りに際しては各々の身体能力、家族構成、その他の個人的事情も考慮し、大きく分けて8種類の間取りが採用されることとなった。 文献 間取り等の決定に際しては、被災者に同一仕様の住居を提供することを木造仮設住宅の可能性しました」仮設団地に3棟のモデル住宅も建設布しています。全国初の試みとして、を提案。ガイドブックを作成して配 熊本県では、 〝あたたかさ〟 〝ゆとり〟 〝ふれあい〟のある仮 にも力を入れた。応急仮設住宅の事例⑪~コミュニティに配慮した配置プランの例②~ 高齢者世帯や子育て世帯等へのケアサポートに配慮したゾーン計画。地元産材 を利用した木造応急仮設住宅40戸を建設。 高齢者・子育て世帯等に配慮したゾーン計画 (岩手県遠野市)



地震災害からの官民連携を生かし熊本で木造仮設が急速着工 日経クロステック Xtech



応急仮設住宅 もしも入る事になったら 3年間お世話になったオレがつぶやきます ありがとう仮設住宅 熊本地震被災 19 6 25 退去
令和2年7月豪雨により被災された方へ応急仮設住宅の入居申し込みを開始しています。 入居申込受付期間 令和2年7月27日(月)から令和2年8月14日(金) 受付場所 球磨村役場、旧熊本県立多良木高等学校避難所、人吉市立人吉第一中学校避難所仮設住宅の間取り(1) (2) カテゴリ: 仮設住宅 我が家の間取りです↓ 入居当時は、どんなに狭くても自分たちの住み家ができたと喜んだものですが、やっぱり狭い。 2DKとの説明だったけど、実際は1LKだと思う。 4人家族までがこれで、5人家族以上は2カメレオン・ソル ヤフー店のプレハブ制作キット 14帖 トイレ・ユニットバス付(仮設住宅Bタイプ)csDXB140ならYahoo!ショッピング!ランキングや口コミも豊富なネット通販。更にお得なPayPay残高も!スマホアプリも充実で毎日どこからでも気になる商品をその場でお求めいただけます。



2 2 災害復興への希望の光 仮設住宅について ハウスメーカー 工務店 All About



Panoramic Photography Panoramic Images Hi Res Images Gigapan
仮設住宅を少しでも早く建築させて頂きます。 元気な日本を取り戻せる様に、みんなで頑張りましょう。 ポラスの注文住宅は北辰工務店長期優良住宅対応1000 万円台からの国産桧の家北辰hp 二世帯住宅 間取り;小住宅 Bタイプ 10坪 \1,584,000 (税込) 他のプレハブ商品とは、ここが違います 内壁 :化粧合板 外壁 :カラー鋼板(断熱材入り) 天井 :水平天井 ビニトーン(断熱材入り) 屋根 :600タイプルーフデッキ トヨ :横トヨ(破風) 縦トヨ(塩ビ)



Web東海新報 視点 住田町木造仮設住宅の今後は



西日本豪雨の木造仮設住宅を訪ねて



広島三原地区木造応急仮設住宅現地ルポ



参考図面 災害への取り組み 一般社団法人プレハブ建築協会



災害後の住まいとなる応急仮設住宅の制度とその実状とは 住まいの本当と今を伝える情報サイト Lifull Home 039 S Press



熊本震災 リポート



仮設住宅10戸完成 宇城市豊野町で入居開始 熊本日日新聞



振り返り 仮設住宅 間取り図 1dkタイプ By Hometown Of Potaru ぽたる



仮設住宅からの移転に最適なコンテナハウスを紹介 宮城県七ヶ浜 ふるさと住み心地プロジェクト



画像 震災の記憶を次世代に 伝える取り組みや遺構が続々と 14 18 ライブドアニュース



ট ইট র 幡ヶ谷再生大学 復興再生部 仮設住宅に移動準備中の袴野の方に誘われて仮設に伺いました 二人家族の間取りはキッチンと4畳半の2部屋にバストイレ別 押入れです 全壊のご自宅から救出した家財も運びこんでいますが 多くは新しく揃える事になります



仮設住宅のリースは東京ハウジングが経済的な価格でご提案 標準間取りー3



03 間取りに際しては各々の身体能力 家族構成 その他の個人的事情も考慮し 大きく分けて8種類の間取りが採用されることとなった 防災情報のページ 内閣府



東日本大震災女川町仮設住宅 Tsp太陽株式会社 イベント企画 設計から運営までトータルサポート



被災からの復興 木造仮設住宅



西日本豪雨から1年 板倉構法 の仮設住宅が示す可能性 Houzz ハウズ



10年 長かった 岩手のプレハブ仮設 最後の退去者 朝日新聞デジタル



熊本 木造仮設住宅が完成 22日入居へ 人吉 山江 朝日新聞デジタル



3週間 1日 災害時に仮設住宅を迅速供給 13 04 09



熊本型デフォルト 応急仮設住宅計画 建築討論web



仮設住宅 朝日新聞デジタル



小屋裏と書斎のある新築一戸建て 熊本県人吉市の4ldk 注文住宅見学会 熊本の注文住宅 ハウスメーカー わかりやすい価格 快適な間取り



ヤフオク 新品プレハブ 仮設住宅組立キット 木造 鋼販張り



3



緊急整備高層住宅のレイアウト



福島ではなぜ 6000戸以上の木造仮設住宅を建てることができたのか スーモジャーナル 住まい 暮らしのニュース コラムサイト



熊本型仮設住宅 熊本で注文住宅を建てるならコムハウス



2



石巻市北上のこれから 職人がつくる木の家ネット Part 2



1



仮設住宅の間取り 1 く ちゃんのハッピーな日々 大震災を乗り越えて 楽天ブログ



いわき地区応急仮設住宅の入居者を募集します 間取り図 東日本大震災アーカイブ Fukushima



10 1 Website 仮設住宅に関する提案 いま何ができるか テンプラスワン ウェブサイト



仮設住宅 東日本大震災



仮設住宅に エアコンの追加取付け 見学会 イベント情報 熊本のリフォーム専門店 リリーフホーム



熊本地震 最初の仮設住宅完成 甲佐町に90戸 毎日新聞



ミニ住宅 Bタイプ 7坪 仮設住宅 外国人向け社宅 社員寮 介護用住宅 セカンドハウス 離れ プレハブ住宅の製造 直販 格安プレハブのアートハウジング



03 間取りに際しては各々の身体能力 家族構成 その他の個人的事情も考慮し 大きく分けて8種類の間取りが採用されることとなった 防災情報のページ 内閣府



参考図面 災害への取り組み 一般社団法人プレハブ建築協会



仮設住宅158戸完成 大洲西予 県産材使用 3日から鍵渡し開始 愛媛新聞online



仮設住宅 朝日新聞デジタル



画像あり 女川町の2 3階建てコンテナ仮設住宅が 仮設ってレベルじゃない と話題に コンテナ 3階建て 仮設



参考図面 災害への取り組み 一般社団法人プレハブ建築協会



03 間取りに際しては各々の身体能力 家族構成 その他の個人的事情も考慮し 大きく分けて8種類の間取りが採用されることとなった 防災情報のページ 内閣府



仮設住宅のリース レンタルは東京ハウジングが経済的な価格でご提案



福岡の豪雨被災地 仮設住宅57戸が完成 バリアフリー対応の部屋も 産経ニュース



振り返り 仮設住宅 間取り図 2dkタイプ By Hometown Of Potaru ぽたる



詳細表示 応急仮設住宅間取り案内



格安プレハブ製造 直販 アートハウジング



17 0531号 仮設住宅 Astamuse



仮設住宅に シェアハウスタイプ を加える提案 秘境光学の楽園



福島ではなぜ 6000戸以上の木造仮設住宅を建てることができたのか スーモジャーナル 住まい 暮らしのニュース コラムサイト



広島三原地区木造応急仮設住宅現地ルポ



震災発 Data阪神 淡路大震災 応急仮設住宅の種類 間取り



仮設住宅って何部屋くらいあるの 3ldkくらいですか リク有難 Yahoo 知恵袋



仮設住宅についての写真記事



熊本 木造仮設住宅が完成 22日入居へ 人吉 山江 朝日新聞デジタル



仮設住宅の問題 種花 Tanehana



詳細表示 応急仮設住宅間取り案内



生活環境改善と建材再利用を考慮した木造仮設住宅 拓殖大学 卒展



仮設住宅のリースは東京ハウジングが経済的な価格でご提案 標準間取りー3



プレハブ住宅の価格やリフォーム費用は メリット デメリットも解説 ニフティ不動産



仮設住宅についての写真記事



Http Www Bousai Go Jp Taisaku Pdf Sumai Sumai 5 Pdf



被災地ngo恊働センター 年7月豪雨水害に関する支援ニュース 第66報 昨日のニュースでも紹介しましたが 水俣の谷さんと当センターのスタッフ増島智子と球磨村渡の区長大原さんの3人が 芦北町の仮設住宅を訪問されました 早速 谷さんからその報告が届いている



秋田駅東第三地区の仮設住宅について 秋田市公式サイト



応急仮設住宅 建設型 の入居申込を受け付けます 随時募集 大洲市ホームページ



石井啓一 コストが安い 設置期間が短い 間取りが複数 内装に木材を多く使い居住性が良い などの利点があります 一方で 平時のストックが課題でした 宿泊 研修施設等として利用する防災 家バンクが 今後各地で普及し ムービングハウス の 応急



仮設住宅について ユニットハウスの製作 販売 レンタルの事ならサニーハウス



地震から3年 ひどすぎる熊本の現実 綺麗事に包み隠され取り残される被災者 長周新聞



Www City Hitoyoshi Lg Jp Dl Q Filelib A6e716ad3c1409adbafafcf3 Pdf



熊本市南区城南町 応急仮設住宅の入居者募集 Fight Ouenkumamoto



第9回応急仮設住宅で過ごす時ってどうなるの ペット用品の通販サイト ペピイ Peppy



2 2 来るべき大災害への備え 仮設住宅の新潮流について ハウスメーカー 工務店 All About



03 間取りに際しては各々の身体能力 家族構成 その他の個人的事情も考慮し 大きく分けて8種類の間取りが採用されることとなった 防災情報のページ 内閣府



シェアハウス型 復興住宅が孤独死を防ぐ オルタナ



福島ではなぜ 6000戸以上の木造仮設住宅を建てることができたのか スーモジャーナル 住まい 暮らしのニュース コラムサイト



03 間取りに際しては各々の身体能力 家族構成 その他の個人的事情も考慮し 大きく分けて8種類の間取りが採用されることとなった 防災情報のページ 内閣府



様々な仮設住宅 Various Temporary Houses



Web東海新報 木の温もり 教訓は 独自整備の木造仮設住宅 住田町



仮設住宅の間取り なんでもござれのブログになった



来年6月には出て行ってください 福島 仮設住宅の現実 Blogos編集部 Blogos ブロゴス



地震災害からの官民連携を生かし熊本で木造仮設が急速着工 日経クロステック Xtech



人吉の仮設住宅が完成しました 友建設



福島ではなぜ 6000戸以上の木造仮設住宅を建てることができたのか スーモジャーナル 住まい 暮らしのニュース コラムサイト



人吉錦町の 大王原公園仮設団地 建設工事が完了しました お知らせ 千里殖産株式会社



1



福島ではなぜ 6000戸以上の木造仮設住宅を建てることができたのか スーモジャーナル 住まい 暮らしのニュース コラムサイト



物は増やさず工夫を楽しむ 仮設住宅入居2週間 報告その3 被災地より 子供達の未来の為に



福島ではなぜ 6000戸以上の木造仮設住宅を建てることができたのか スーモジャーナル 住まい 暮らしのニュース コラムサイト



1



熊本地震で分かったこと まとめ 壺中日月長



Www Jia Kanto Org Jutaku Uia Report Pdf Kasetsu 02 Pdf



宮城県2日目 仮設住宅 多摩平通信



振り返り 仮設住宅 間取り図 集会所 談話室 By Hometown Of Potaru ぽたる



東日本大震災後の仮設住宅 Wikipedia



Sba



Www Pref Fukushima Lg Jp Uploaded Attachment Pdf


0 件のコメント:
コメントを投稿